Jessen Gewerbeobjekt, Digitalisierung Bestandspläne
Bestandspläne für ASPA Bauregie GmbH
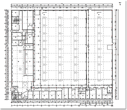
- 1 Grundriss Erdgeschoss, M 1:100
- 1 Schnitt, M 1:100
Als Zeichengrundlage dienten gescannte Papier-Bestandspläne. Nach den darin enthaltenen Maßangaben wurde der Grundriss konstruiert. Mit wenigen Kontrollmaßen vor Ort, wurden Unstimmigkeiten ausgeräumt und eine exakte Zeichnung sichergestellt.

Bestandsplan Gewerbehalle, Grundriss
Bestandsplan Gewerbehalle, Schnitt
[ zurück ]